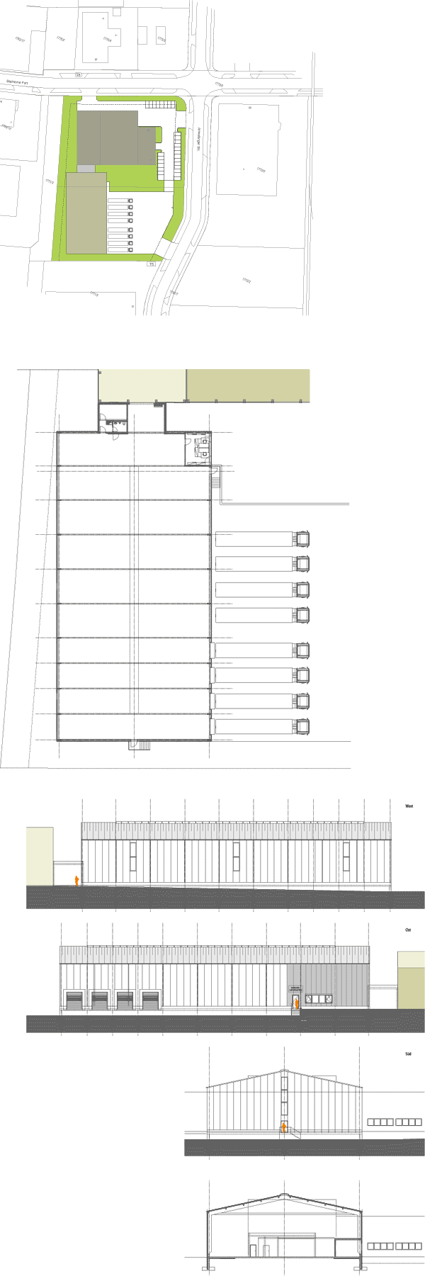
PROJEKT

Logistikhalle mit Anlieferung
Augsburg | Fertigstellung 2020
 

Die Fir­ma Kai­ser Licht & Ton, als Aus­stat­ter zahl­rei­cher Ver­an­stal­tun­gen, be­nö­tigt für die La­ge­rung Ih­rer tech­ni­schen An­la­gen zu­sätz­li­chen Raum.

Ne­ben der gu­ten An­bin­dung für die lo­gis­ti­sche Ab­wick­lung war auch ein wirt­schaft­li­ches Ge­samt­kon­zept er­for­der­lich. Es entstand ei­ne neue Hal­le mit 1.600m² und vier LKW-La­de­docks.

 

Leistungen
LPH 1-4

 

Planungsunterlagen

 

FUßNER KÜHNE